Overhead doors are most commonly made of wood, galvanized steel, and aluminum but fiberglass and stainless steel doors are also available. They swing or roll open upward ultimately resting in a location above the door opening. The most common operation types are ‘sectional’ or ‘rolling’. Sectional doors typically have 3+ sections which fold horizontally at the tongue-and-groove joint as the door raises up.


Rolling doors have many narrow segments which are also jointed to roll upward.

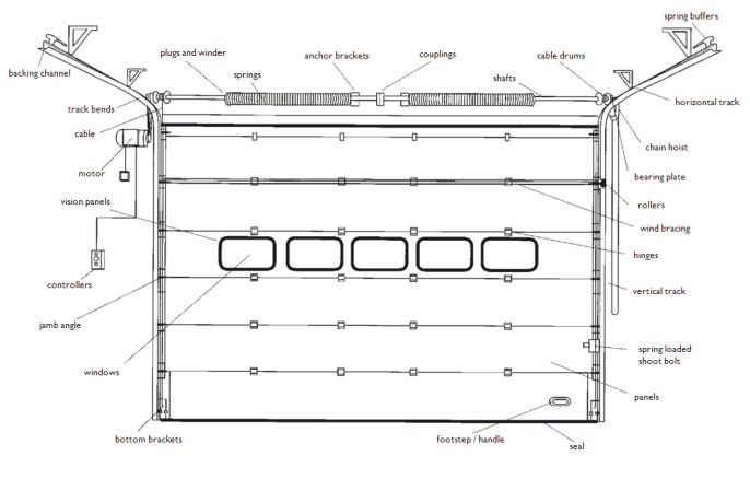
Overhead doors can be manually operated, chain-hoist operated


or electric motor operated

Some primary options for overhead doors are vision panels, pass-through sections, and thermal insulation among others. Overhead doors are most commonly available in sizes up to 38′ wide and 26′ high.
The operating features for most styles consist of the following:
-2-4″ tracks (vertical and horizontal) to guide door

-motor operator to power opening/closing if chosen

-jamb & jamb-brackets
-panel hinges on inside of door

-strut (horizontal) to stiffen the door near the header

-torsion spring and winding cone above strut to assist if manual opening/closing

-right and left cable drum at each end of torsion bar to wind cable (if manual)

-track angle hanger or unistrut to mount horizontal ceiling tracks to ceiling

-stationary sheave/moving sheave/extension spring/containment hanger at each horizontal track (if power operated)
Electric operators are most commonly mounted centered on the ceiling or structure above near the termination of the horizontal tracks, but they can also be side mounted. Typical motors are 1/2, 3/4, or 1 hp in single or three phase power depending on the system and door weight. Fan-cooled and non-ventilated operators are available and they typically receive open/close commands on advanced radio frequency detection systems. Most units come with a mechanical brake system (often disc) for sudden stopping. Operators will typically come with a warranty which specifies the number of cycles possible within it’s life, with 10,000-30,000 being most common for standard light-duty to medium duty doors.
Steel Overhead Doors
Steel door thicknesses commonly range from 1-3/8″ to 3″ depending on the application. Panels can come flush or ribbed with or without windows. Finishes are often ’embossed’ and consist of imitation wood grain and stucco.
Panel patterns consist of flush, ribbed, minor-ribbed, light-ribbed, minor-and-deep ribbed, and raised panel.



Light duty applications will typically utilize 24-27 gauge steel thickness. Heavier duty applications will require 20 gauge thick panels or thicker. Colors are commonly limited to white, black, tan, brown, and gray but other custom colors may be available upon request.
Insulated steel garage doors have become extremely popular and are even a code requirement in most heated/cooled structures. They typically utilize polyurethane or polystyrene insulation foam and can provide R-values from R6 – R22. Polyurethane insulation typically yields higher R-Values but has a higher cost. Thermally broken overhead doors are even available though often at a higher cost. Otherwise, R-Value is driven by door/insulation thickness, for example:
1-3/8″ = R6-R13
1-3/4″ = R12-R17
2″ = R6-R19
3″ = R12-R23
Some specialty options that may be available in terms of performance of the door are: high-cycle springs, heavy duty track, outside keyed, impact rating. Pass thru and access doors may also be available. Wood overhead doors can actually come with polystyrene insulation cores similar to steel doors, providing R-Values up to R5 or more. Window options often consist of square panel, horizontal panel, sunray, and cathedral.

Wood Overhead Doors
Wood overhead doors are most commonly utilized in residential construction and occasionally in light-commercial. Visual options range from flush panels and rail-and-stile framed or raised panels.
FLush panel overhead doors typically come with paint grade smooth grade plywood and can come primed only, painted, natural stained, or unfinished. Additional window and trim options are available as well.

Rail and STile overhead windows offer a more complex architectural look with framed or raised panel appearances. One common construction method is smooth hardboard panel structure with rail and stiles overlaid.


Aluminum Overhead Doors
Aluminum is typically utilized as a material in overhead doors which couples well with glass providing visual and translucent appeal, most commonly in commercial situations. Glass options available are 1/8″-1/4″ acrylic, tempered, wire-glass, clear-polycarbonate or 1/2″ insulating glass.
